Download our information package (PDF - 4 MB)
download file
note:
Rent and Life lease values, as well as Occupancy fees that are shown, are subject to change and will be confirmed at the time the Reservation Form is signed by SCCSHI.
examples:
Full Life Lease residents pay an entrance fee equal to the full life lease value and then make a monthly payment consisting of the Occupancy Fees. E.g.
assuming a resident wishes to life lease a Forestberry unit, he/she would
pay an entrance fee of $412,500.00, and then pay an occupancy fee of $1,399.00 per month.
Other optional fees may apply.
Rental residents pay no entrance fee but pay a monthly rental rate which
includes the monthly occupancy fee.
Other optional fees may apply.
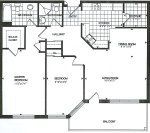
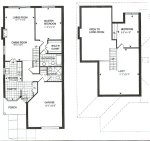
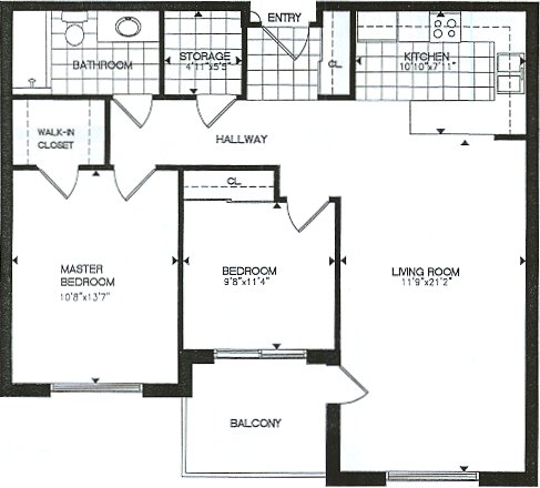
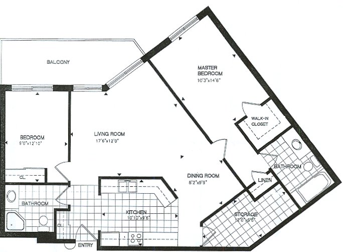
The floor plans are listed below. Click on the name to see details regarding each unit.
willow
square footage: 633
floor: ALL
building: Eden Hall
bedrooms: 1
bathrooms: 1
optional laundry: N
fireplace: N
rent: $1,502.00 (includes the occupancy fee)
life lease value: $204,000.00
occupancy: $780.00
For life lease residents the monthly occupancy fee will apply each month.
lilac
square footage: 770
floor: ALL
building: ALL
bedrooms: 1
bathrooms: 1
optional laundry: N
fireplace: N
rent: $1,837.00 (includes the occupancy fee)
life lease value: $248,000.00
occupancy: $912.00
For life lease residents the monthly occupancy fee will apply each month.
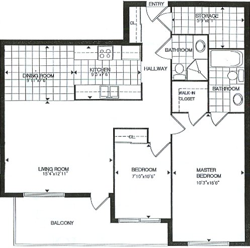
holly
square footage: 800
floor: 1
building: Eden Hall, Bethany Gables
bedrooms: 1
bathrooms: 1
optional laundry: N
fireplace: N
rent: $1,898.00 (includes the occupancy fee)
life lease value: $257,500.00
occupancy: $936.00
For life lease residents the monthly occupancy fee will apply each month.
cranberry 1
square footage: 892
floor: ALL
building: Eden Hall, Bethany Gables
bedrooms: 2
bathrooms: 1
optional laundry: N
fireplace: N
rent: $2,173.00 (includes the occupancy fee)
life lease value: $287,000.00
occupancy: $1,032.00
For life lease residents the monthly occupancy fee will apply each month.
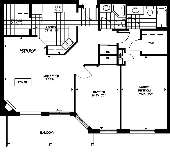
cranberry 2
square footage: 915
floor: ALL
building: Trinity Woods, Sonrise Place
bedrooms: 2
bathrooms: 1
optional laundry: N
fireplace: N
rent: $2,225.00 (includes the occupancy fee)
life lease value: $296,500.00
occupancy: $1,054.00
For life lease residents the monthly occupancy fee will apply each month.
bayberry
square footage: 940
floor: ALL
building: Eden Hall, Bethany Gables
bedrooms: 2
bathrooms: 1
optional laundry: N
fireplace: N
rent: $2,294.00 (includes the occupancy fee)
life lease value: $302,500.00
occupancy: $1,092.00
For life lease residents the monthly occupancy fee will apply each month.
coralberry 2
square footage: 955
floor: ALL
building: Bethany Gables
bedrooms: 2
bathrooms: 2
optional laundry: N
fireplace: N
rent: N/A
life lease value: $307,500.00
occupancy: $1,108.00
For life lease residents the monthly occupancy fee will apply each month.
coralberry 3
square footage: 955
floor: ALL
building: Bethany Gables
bedrooms: 2
bathrooms: 2
optional laundry: N
fireplace: N
rent: N/A
life lease value: $310,500.00
occupancy: $1,108.00
For life lease residents the monthly occupancy fee will apply each month.
coralberry 1
square footage: 1001
floor: ALL
building: Eden Hall
bedrooms: 2
bathrooms: 2
optional laundry: N
fireplace: N
rent: N/A
life lease value: $322,500.00
occupancy: $1,144.00
For life lease residents the monthly occupancy fee will apply each month.
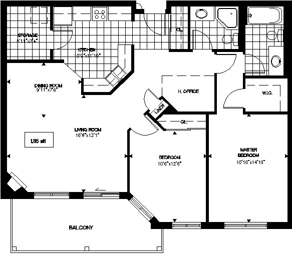
partridgeberry
square footage: 1025
floor: 1
building: Bethany Gables
bedrooms: 2
bathrooms: 2
optional laundry: N
fireplace: N
rent: N/A
life lease value: $329,500.00
occupancy: $1,173.00
For life lease residents the monthly occupancy fee will apply each month.
dewberry
square footage: 1075
floor: ALL
building: Bethany Gables
bedrooms: 2
bathrooms: 2
optional laundry: N
fireplace: N
rent: N/A
life lease value: $346,000.00
occupancy: $1,227.00
For life lease residents the monthly occupancy fee will apply each month.
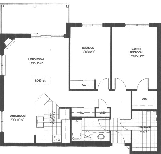
bayberry 2
square footage: 1045
floor: ALL
building: Sonrise Place
bedrooms: 2
bathrooms: 1
optional laundry: Y
fireplace: Y
rent: N/A
life lease value: $349,000.00
occupancy: $1,196.00
For life lease residents the monthly occupancy fee will apply each month.
loganberry
square footage: 1128
floor: ALL
building: Eden Hall, Bethany Gables
bedrooms: 2
bathrooms: 2
optional laundry: N
fireplace: N
rent: N/A
life lease value: $363,000.00
occupancy: $1,282.00
For life lease residents the monthly occupancy fee will apply each month.
mulberry
square footage: 1145
floor: ALL
building: Eden Hall
bedrooms: 2
bathrooms: 2
optional laundry: N
fireplace: N
rent: N/A
life lease value: $368,500.00
occupancy: $1,299.00
For life lease residents the monthly occupancy fee will apply each month.
jostaberry
square footage: 1110
floor: L
building: Trinity Woods
bedrooms: 2
bathrooms: 2
optional laundry: Y
fireplace: Y
rent: N/A
life lease value: $370,500.00
occupancy: $1,266.00
For life lease residents the monthly occupancy fee will apply each month.
loganberry 1
square footage: 1115
floor: L & 1
building: Trinity Woods, Sonrise Place
bedrooms: 2
bathrooms: 2
optional laundry: Y
fireplace: Y
rent: N/A
life lease value: $372,500.00
occupancy: $1,273.00
For life lease residents the monthly occupancy fee will apply each month.
loganberry 3
square footage: 1115
floor: ALL
building: Trinity Woods, Sonrise Place
bedrooms: 2
bathrooms: 2
optional laundry: Y
fireplace: Y
rent: N/A
life lease value: $372,500.00
occupancy: $1,273.00
For life lease residents the monthly occupancy fee will apply each month.
loganberry 4
square footage: 1124
floor: ALL
building: Sonrise Place
bedrooms: 2
bathrooms: 2
optional laundry: Y
fireplace: Y
rent: N/A
life lease value: $375,500.00
occupancy: $1,278.00
For life lease residents the monthly occupancy fee will apply each month.
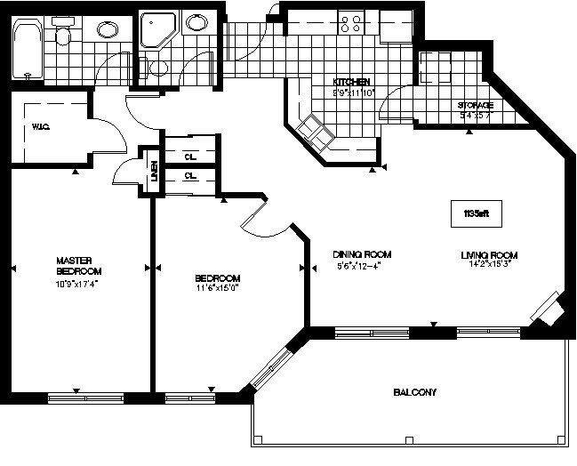
loganberry 2
square footage: 1135
floor: ALL
building: Trinity Woods, Sonrise Place
bedrooms: 2
bathrooms: 2
optional laundry: Y
fireplace: Y
rent: N/A
life lease value: $379,000.00
occupancy: $1,293.00
For life lease residents the monthly occupancy fee will apply each month.
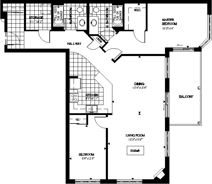
alderberry
square footage: 1245
floor: ALL
building: Bethany Gables
bedrooms: 2
bathrooms: 2
optional laundry: N
fireplace: N
rent: N/A
life lease value: $400,500.00
occupancy: $1,402.00
For life lease residents the monthly occupancy fee will apply each month.
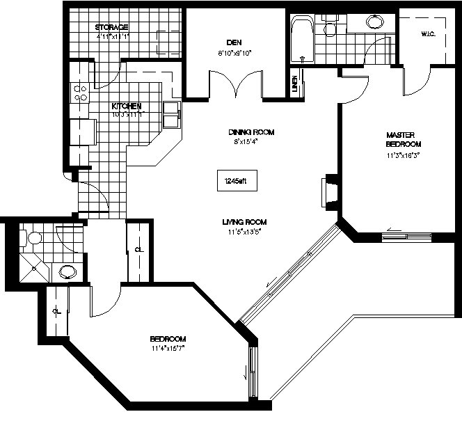
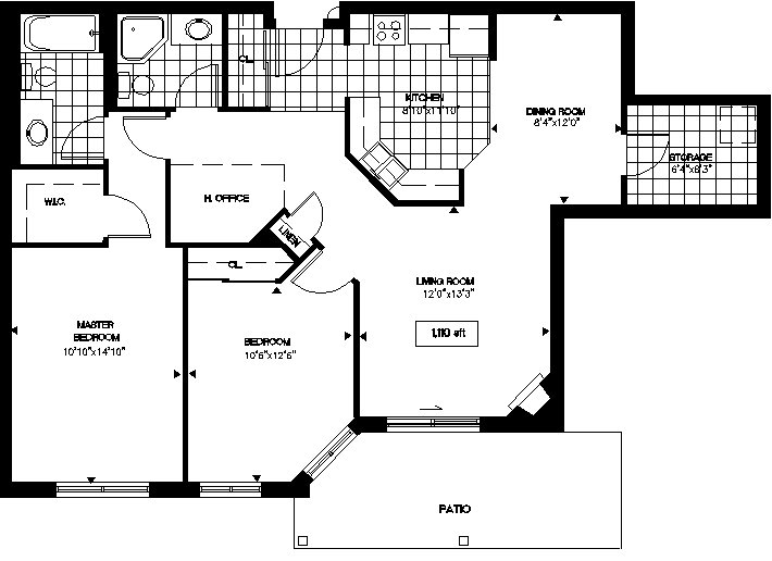
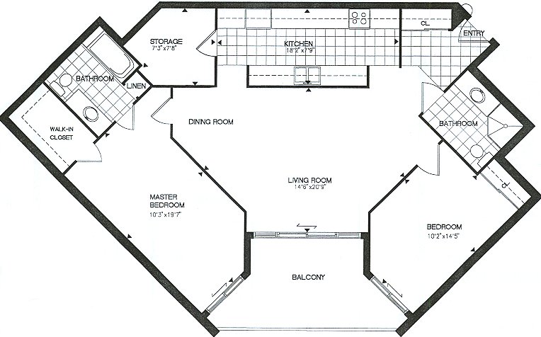
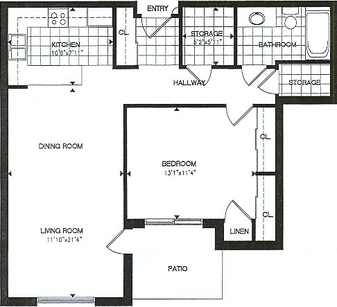
forestberry
square footage: 1235
floor: ALL
building: Trinity Woods, Sonrise Place
bedrooms: 2 + Den
bathrooms: 2
optional laundry: Y
fireplace: Y
rent: N/A
life lease value: $412,500.00
occupancy: $1,399.00
For life lease residents the monthly occupancy fee will apply each month.
boysenberry 2
square footage: 1245
floor: ALL
building: Sonrise Place
bedrooms: 2 + Den
bathrooms: 2
optional laundry: Y
fireplace: Y
rent: N/A
life lease value: $415,500.00
occupancy: $1,405.00
For life lease residents the monthly occupancy fee will apply each month.
juneberry
square footage: 1245
floor: ALL
building: Trinity Woods
bedrooms: 2
bathrooms: 2
optional laundry: Y
fireplace: Y
rent: N/A
life lease value: $415,500.00
occupancy: $1,405.00
For life lease residents the monthly occupancy fee will apply each month.
boysenberry 1
square footage: 1274
floor: ALL
building: Trinity Woods
bedrooms: 2 + Den
bathrooms: 2
optional laundry: Y
fireplace: Y
rent: N/A
life lease value: $425,000.00
occupancy: $1,436.00
For life lease residents the monthly occupancy fee will apply each month.
wilderberry
square footage: 1290
floor: ALL
building: Trinity Woods, Sonrise Place
bedrooms: 2 + Den
bathrooms: 2
optional laundry: Y
fireplace: Y
rent: N/A
life lease value: $431,000.00
occupancy: $1,707.00
For life lease residents the monthly occupancy fee will apply each month.
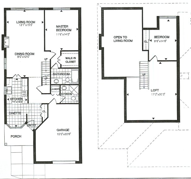
garden home
square footage: 1510
floor: N/A
building: Semis
bedrooms: 2
bathrooms: 2
optional laundry: Y
fireplace: Y
rent: N/A
life lease value: $499,500.00
occupancy: $1,745.00
For life lease residents the monthly occupancy fee will apply each month.